


Charmante, sanierte 3-Zimmer-Wohnung mit EBK – hell, ruhig und nah an der Enz, nah am Bahnhof
Beschreibung
Helle 3-Zimmer-Wohnung im Obergeschoss – direkt an der Enz und in Bahnhofsnähe
Diese charmante 3-Zimmer-Wohnung befindet sich im Obergeschoss eines gepflegten 4-Familienhauses, das um 1905 erbaut wurde. Die Wohnung wurde umfassend saniert und überzeugt durch ihren modernen, hellen Charakter. Auch das Gebäude selbst wurde über die Jahre hinweg durch regelmäßige Renovierungsmaßnahmen laufend instand gehalten.
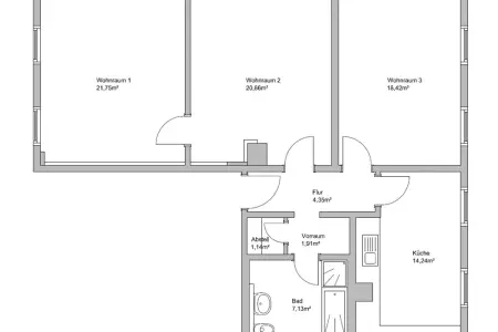
Die Wohnung verfügt über zwei gut geschnittene Schlafzimmer, ein großzügiges Wohn- und Esszimmer sowie eine große Küche. Das Highlight bildet das Wohlfühlbad, das mit Badewanne und Dusche ausgestattet ist und damit höchsten Wohnkomfort bietet. Die neuwertige Einbauküche inkl. integrierten Geschirrspüler und großer Kühl-/ Gefrierkombination fügt sich harmonisch in das Gesamtbild ein und rundet das attraktive Angebot ab.
Ein Doppelstellplatz für zwei Pkw (hintereinander) kann bei Bedarf für 60,– € monatlich zusätzlich angemietet werden.
Die Wohnung steht ab dem 01.11.2025 zur Anmietung bereit. Als Sicherheitsleistung sind drei Monatsmieten Kaution in Höhe von 2.340,– € zu hinterlegen.
780€ Miete
Daten und Fakten:
Objektart
Wohnung
Objekttyp
Etagenwohnung
Vermarktungsart
Miete
ImmoNr
107272
Adresse
75305 Neuenbürg,
Wohnfläche ca.
90,00 m²
Zimmer
3,00
Baujahr
1905
Käuferprovision
Keine zusätzliche Vermittlungscourtage inkl. MwSt.










Ausstattung
Die Immobilie bietet Ihnen nachfolgende Ausstattung:
-Isolierverglaste Holzfenster weiß
-Holztreppe
-neue, hochwertige Einbauküche inkl. integrierten Geschirrspüler und großer Kühl-/ Gefrierkombination
-neuwertige Holz-Pellet-Zentralheizung im Haus
-moderner Durchlauferhitzer für WW-Versorgung
-komplett neues (Tageslicht-)Bad mit Stellfläche und Anschluss für WM/Trockner (übereinander)
-Laminatboden in den Wohnräumen
-in den wichtigsten Räumen Alu-Jalousien innen montiert
-komplette Beleuchtung installiert (überwiegend mit integrierten Deckenspots)
-Brandschutzmelder
-Sprechanlage
-neue SAT-Schüssel
Die obige Ausstattungsbeschreibung bezieht sich auf dominierende Merkmale.
Angaben zum Energieausweis
Energieausweistyp
Bedarfsausweis
Gültig bis
18.01.2026
Baujahr lt. Energieausweis
1905
Primärenergieträger
Pelletheizung
Energieeffizienzklasse
F
Endenergiebedarf
185 kWh/(m²a)
Lage
Lage & Umgebung – Leben in Neuenbürg
Verkehrsanbindung: Direkter Anschluss an die B294 mit schneller Verbindung nach Pforzheim, Karlsruhe und Stuttgart. Zusätzlich sorgt der S-Bahn-Anschluss nach Pforzheim für eine bequeme Anbindung an die Region.
Einkaufsmöglichkeiten: Supermärkte, Bäckereien und Apotheken sind in unmittelbarer Nähe vorhanden. Ein vielfältiges Shopping- und Einzelhandelsangebot finden Sie in Pforzheim.
Bildung: Kindergärten, Grund- und weiterführende Schulen befinden sich direkt in Neuenbürg. Hochschulen und Berufsschulen in Pforzheim und Karlsruhe sind gut erreichbar.
Freizeit & Natur: Die direkte Lage am Schwarzwald bietet ideale Bedingungen für Wanderungen, Radtouren und Outdoor-Aktivitäten. Schloss Neuenbürg und der Enztalradweg zählen zu den besonderen Highlights.
Gastronomie: Von traditioneller schwäbischer Küche bis zu internationalen Restaurants – die Region bietet ein abwechslungsreiches kulinarisches Angebot.
Gesundheitsversorgung: Ärzte, Apotheken und medizinische Einrichtungen befinden sich vor Ort. Kliniken in Pforzheim sind schnell erreichbar.
Fazit: Neuenbürg vereint idyllisches Wohnen inmitten der Natur mit bester Anbindung – ein Ort, an dem andere Urlaub machen.
Die Immobilie befindet sich mitten im Ortszentrum.
Exposé Anfrage
Wenn Sie das Kontaktformular zur Übermittlung Ihrer Anfrage benutzen, erklären Sie sich damit einverstanden, dass wir Sie per Telefon und/oder E-Mail bezüglich Ihrer Anfrage sowie dass Sie mit der dazu notwendigen Speicherung Ihrer Daten einverstanden sind.